Izotex Sp. z o.o.

ul. Strońska 6B
50-540 Wrocław

tel. + 48 604 802 447

tel. + 48 71 795 07 26
tel. + 48 71 795 07 46

biuro@izotex.pl

                  Sklep internetowy:   

www.izomarket.pl

Rozwiązania technologiczne izolacji

Współpracując z liderami w zakresie oferowanych przez nas technologii oraz wykorzystując nasze wieloletnie doświadczenie dobieramy optymalne pod względem technicznym i ekonomicznym rozwiązania technologiczne.

Rozwiązania są przygotowywane na podstawie Państwa zapytań i przesłanych dokumentacji projektowych. Ogólne rozwiązania systemowe stanowią, na Państwa życzenie, załącznik do przekazywanych naszych katalogów.

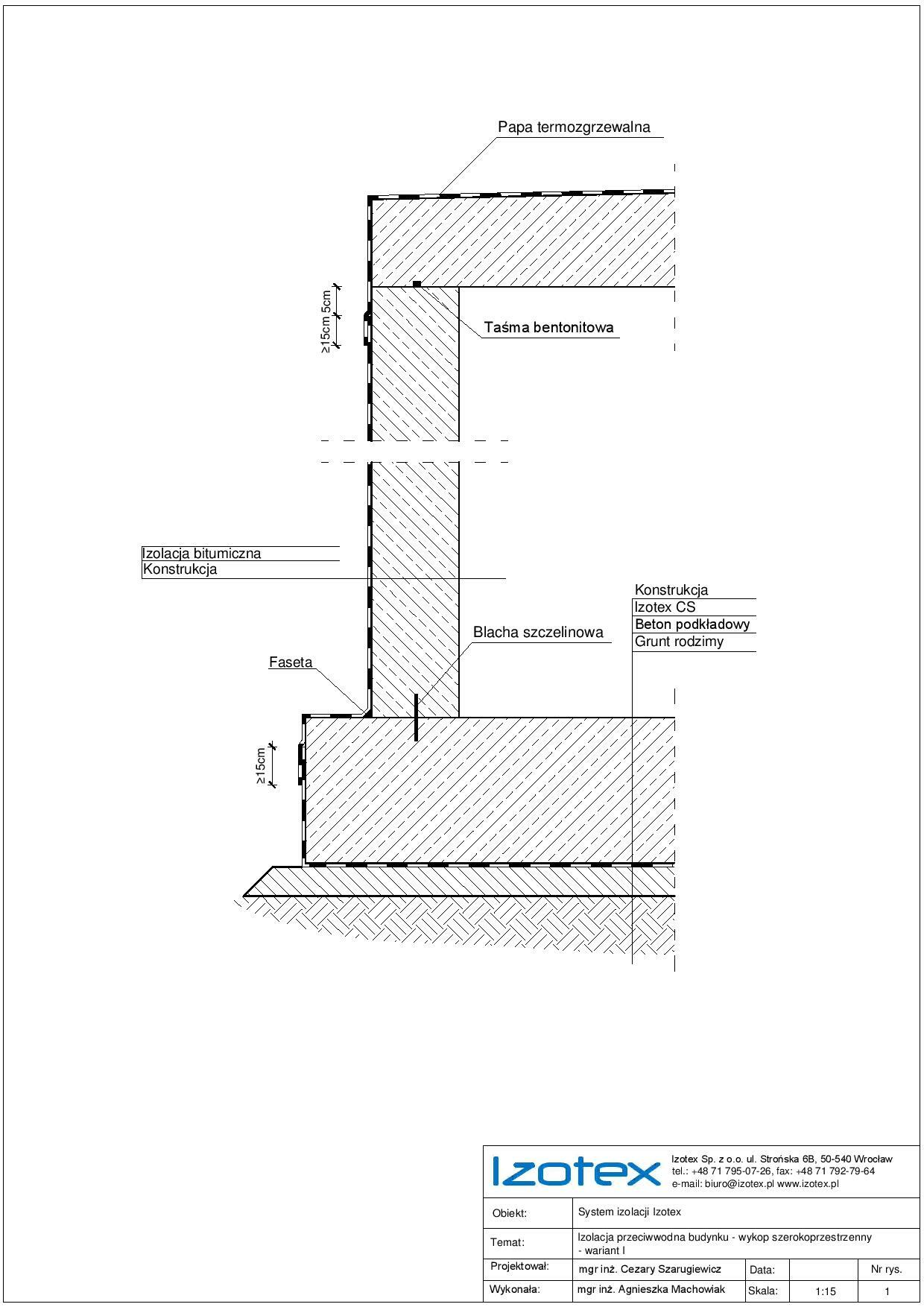
Kilka z takich rozwiązań jest zamieszczonych na niniejszej stronie.

KONSTRUKCJE BUDOWLANE

GEOSYNTETYKI